Galpão em Condomínio
Guarulhos / SP
straighten
Área locável (ABL):
de 2.210 a 12.088 m²
Venda
Valor sob consulta
Cond: Valor sob consulta • IPTU: Valor sob consulta
Cód. do imóvel: 35008872
/
.../
Gostou do imóvel?
Fale conosco para saber mais detalhes sobre este galpão e receber outras opções similares.
Características do imóvel
straighten
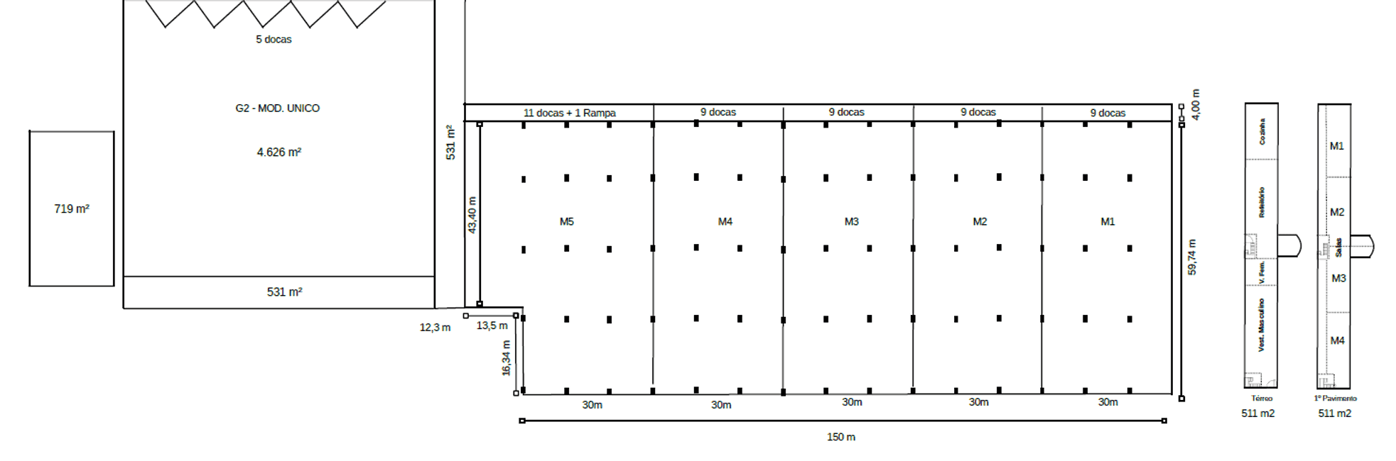
Área total (ABL): 12.088 m²
5 módulos de 2.210 a 3.248 m²
border_style
Área de piso: 9.546 m²
5 módulos de 1.792 a 2.378 m²
garage_home
Quantidade de docas
47 docas
expand
Pé-direito
8 m de altura
Informações adicionais
check_circle
Docas elevadas
check_circle
Marquise: 120 a 174 m²
check_circle
Escritório: 128 a 531 m²
check_circle
Área comum: 165 a 170 m²
Localização
Condomínio: SP LOG TAMOTSU






