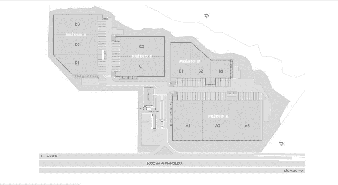
Galpão em Condomínio
Limeira / SP
straighten
Área locável (ABL):
de 2.575 a 10.570 m²
Aluguel a partir de
Valor sob consulta
Cond: Valor sob consulta • IPTU: Valor sob consulta
Cód. do imóvel: 35004150
/
.../
Gostou do imóvel?
Fale conosco para saber mais detalhes sobre este galpão e receber outras opções similares.
Características do imóvel
straighten
Área total (ABL): 10.570 m²
3 módulos de 2.575 a 4.492 m²
border_style
Área de piso: 8.346 m²
3 módulos de 1.876 a 3.707 m²
garage_home
Quantidade de docas
27 docas
expand
Pé-direito
14 m de altura
weight
Capacidade de piso
6 t/m²
Informações adicionais
check_circle
Docas elevadas
check_circle
Escritório: 215 a 312 m²
check_circle
Área comum: 387 a 568 m²
Localização
Condomínio: DVR Business Park Limeira












