Galpão em Condomínio
Guaíba / RS
straighten
Área locável (ABL):
de 6.473 a 38.839 m²
Aluguel a partir de
Valor sob consulta
Cond: Valor sob consulta • IPTU: Valor sob consulta
Cód. do imóvel: 35001411
/
.../
Gostou do imóvel?
Fale conosco para saber mais detalhes sobre este galpão e receber outras opções similares.
Características do imóvel
straighten
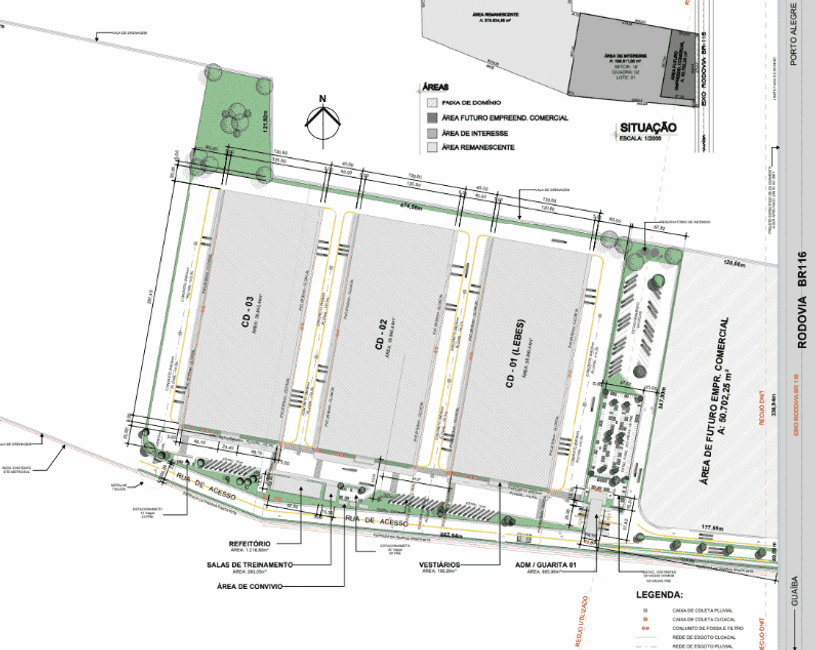
Área total (ABL): 38.839 m²
6 módulos de 6.473 m²
garage_home
Quantidade de docas
114 docas
expand
Pé-direito
14 m de altura
weight
Capacidade de piso
6 t/m²
swap_horiz
Possui crossdocking
Informações adicionais
check_circle
Docas elevadas
check_circle
Área comum: 6.473 m²
Localização
Condomínio: Ellosul - Ecossistema Logístico

















