Galpão em Condomínio
Jundiaí / SP
straighten
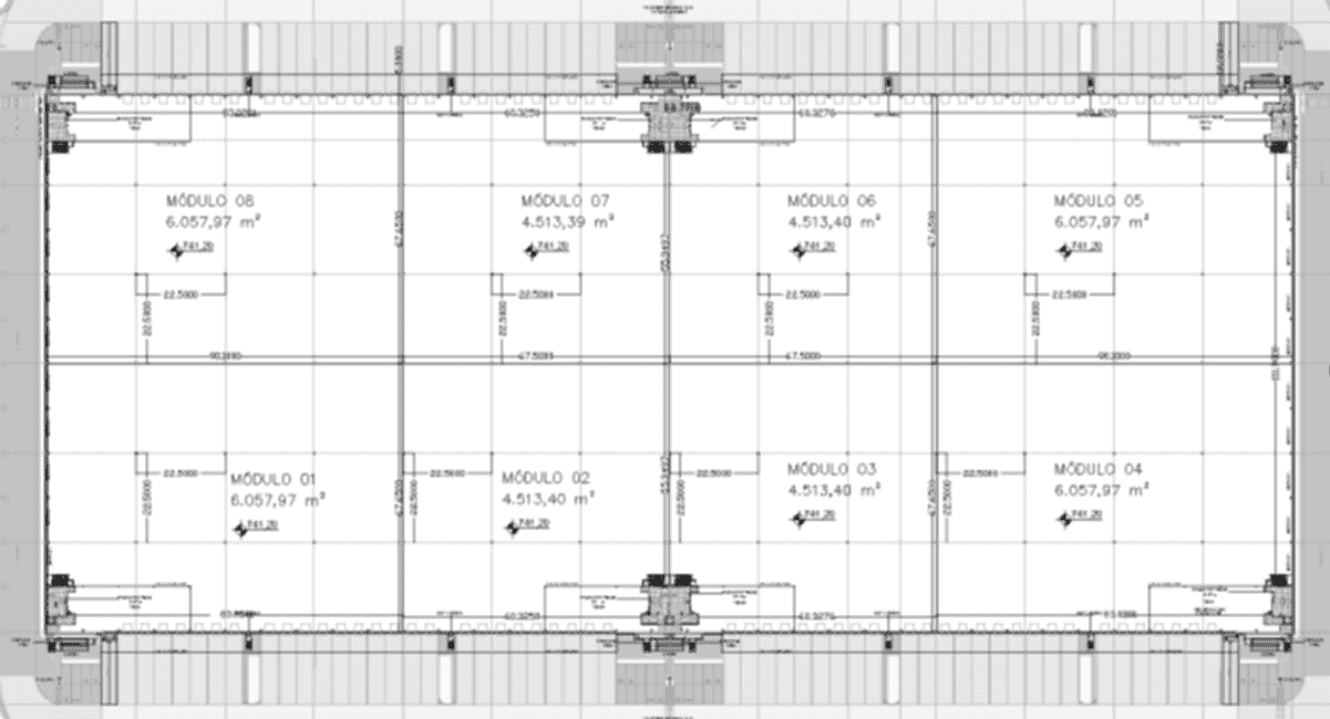
Área locável (ABL):
de 4.259 a 59.583 m²
Aluguel a partir de
Valor sob consulta
Cond: Valor sob consulta • IPTU: Valor sob consulta
Cód. do imóvel: 34487444
/
.../
Gostou do imóvel?
Fale conosco para saber mais detalhes sobre este galpão e receber outras opções similares.
Características do imóvel
straighten
Área total (ABL): 59.583 m²
12 módulos de 4.259 a 5.813 m²
border_style
Área de piso: 48.851 m²
12 módulos de 3.518 a 4.514 m²
garage_home
Quantidade de docas
62 docas
expand
Pé-direito
12 m de altura
weight
Capacidade de piso
6 t/m²
Informações adicionais
check_circle
Docas elevadas
check_circle
Área comum: 741 a 1.332 m²
Localização
Condomínio: HGLG Itupeva









